20 Park Lane, Minneapolis, MN 55416

$2,320,000
Property Type: Residential Bedrooms: 4 Baths: 5 Square Footage: 4,134 Lot Size (sq. ft.): 10,454 Status: Closed
Current Price: $2,320,000 List Date: 8/21/2023 Last Modified: 8/06/2025

Overview

Description

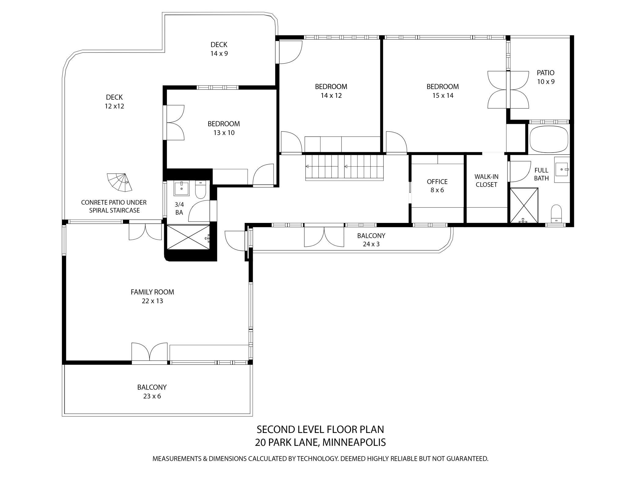
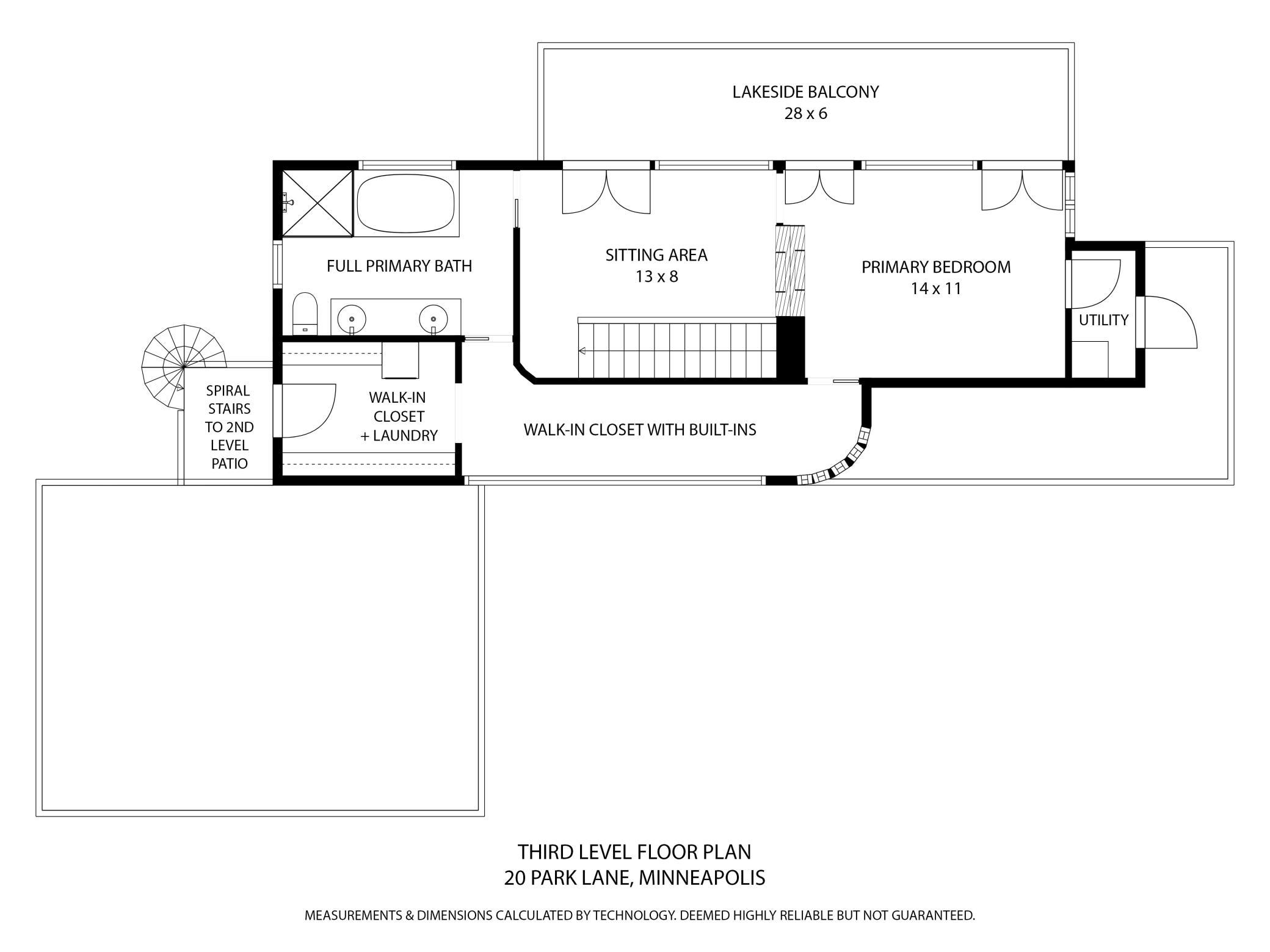
Featured on the cover of “Legendary Homes of the Minneapolis Lakes” by photographer Karen Melvin and writer Bette Hammel, this timeless one-of-a-kind Art Moderne/International Style home was designed to take full advantage of its spectacular west facing lake front on Cedar Lake. One of the few Minneapolis properties with direct waterfront access, the home features walls of glass, clean white walls, translucent glass block windows, phenomenal terraces and multi-level decks, and exceptional sunset views. Art Deco influences are evident throughout. Unique tiled kitchen floors, open main level floor plan, three bedrooms and wonderful family room on 2nd level. The entire 3rd floor is devoted to the primary suite which includes bedroom, sitting room with fireplace, bath with heated floors and steam shower, dressing room, and expansive lake facing terrace. Superb condition, attached garage, smart home technology. Fantastic location near trails, parks & restaurants.

Listing Details MLS# 6410031

General Property Information

Common Wall
No
Lot Measurement
Acres
Manufactured Home?
No
Multiple PIDs?
No
New Development
No
Number of Fireplaces
3
Road Btwn WF & Home?
No
Waterfront Present
No
Year Built
1936
Yearly/Seasonal
Yearly
Zoning
Residential-Single Family
Bath Full
2
Bath Three Quarters
2
Bath Half
Yes
Main Floor Total SqFt
1692
Above Grd Total SqFt
3873
Below Grd Total SqFt
261
Total SqFt
4134
Total Finished Sqft
4134.00
FireplaceYN
Yes
Lake/Waterfront Name
Cedar
Style
(SF) Single Family
Foundation Size
1692
Power Company
Xcel Energy
Garage Stalls
2
Lot Dimensions
75x114x90x169
Acres
0.24
# Carport Spaces
0
Bath Quarter
0
Association Fee
0

Property Features

Accessible: None Air Conditioning: Central Air Amenities Unit: Balcony; Ceiling Fan(s); Deck; French Doors; Hardwood Floors; In-Ground Sprinkler; Kitchen Window; Panoramic View; Patio; Primary Bedroom Walk-In Closet; Security System; Tile Floors; Washer/Dryer Hookup Appliances: Air-To-Air Exchanger; Dishwasher; Disposal; Dryer; Microwave; Range; Refrigerator; Washer; Water Osmosis System Basement: Concrete Block; Crawl Space; Drain Tiled; Partial; Sump Pump Bath Description: Double Sink; Main Floor 1/2 Bath; Main Floor 3/4 Bath; Upper Level 3/4 Bath; Upper Level Full Bath; Full Primary; Private Primary; Bathroom Ensuite; Separate Tub & Shower Construction Status: Previously Owned Dining Room Description: Informal Dining Room; Living/Dining Room; Separate/Formal Dining Room Electric: Circuit Breakers Elevation Highpoint to Waterfront Slope: Level Exterior: Stucco Family Room Characteristics: Entertainment/Media Center Fencing: None Financing Terms: Cash Fireplace Characteristics: 2-Sided; Family Room; Gas Burning; Living Room; Primary Bedroom Fuel: Natural Gas Heating: Forced Air; In-Floor Heating Laundry: Laundry Room; Main Level; Upper Level Lot Description: Tree Coverage - Light Parking Characteristics: Garage Door Opener; Heated Garage; Insulated Garage Pool Description: None Road Frontage: City Street Road Responsibility: Public Maintained Road Roof: Age Over 8 Years; Flat; Rubber Sellers Terms: Cash; Conventional Sewer: City Sewer/Connected Special Search: 2nd Floor Laundry; 3 BR on One Level; Main Floor Bedroom; Main Floor Laundry; Primary Bdr Suite Stories: More Than 2 Stories Water: City Water/Connected Waterfront View: West

Contract Information

Off Market Date
2023-11-09
Contingency
None
Closed Date
2023-11-17
Original List Price
2995000
Sales Close Price
2320000
ListPrice
2299000
Owner is an Agent?
No
Auction?
No

Location Tax and Other Information

House Number
20
Street Name
Park
Street Suffix
Lane
Postal City
Minneapolis
County
Hennepin
State
MN
Zip Code
55416
Complex/Dev/Subdivision
Rees Tr Cedar Shores Add

Assessments

Assessment Balance
15791
Tax With Assessments
40208

Building Information

Finished SqFt Above Ground
3873
Finished SqFt Below Ground
261

More Information

Lake Details

Lake Acres
163
Lake Chain Acreage
1049
Lake Chain Name
Minneapolis
Lake Depth
51

Lease Details

Land Leased
Not Applicable

Miscellaneous Information

Homestead
No

Ownership

Fractional Ownership
No

Parking Characteristics

Garage Dimensions
23x19
Garage Door Height
7
Garage Door Width
16
Garage Square Feet
477
Garage Door Opener
Yes
Heated Garage
Yes
Insulated Garage
Yes

Public Survey Info

Range#
24
Section#
32
Township#
29

Office/Member Info

Association
MAAR
MLSID
RMLS

Location, Tax and Other Information

AssocFeeYN
No
Legal Description
LOT 001 REES TRACT CEDAR SHORES ADDN
Listing City
Minneapolis
Map Page
106
Municipality
Minneapolis
Rental License?
No
School District
Minneapolis
School District Phone
612-668-0000
DNR Lake ID#
27003900
DNR Lake Classification
Recreational Development
Lake Chain
Y
Zip Plus 4
4340
Property ID Number
3202924240004
Tax Year
2023
Tax Amount
40208
In Foreclosure?
No
Potential Short Sale?
No
Lender Owned?
No

Directions & Remarks

Public Remarks
Featured on the cover of “Legendary Homes of the Minneapolis Lakes” by photographer Karen Melvin and writer Bette Hammel, this timeless one-of-a-kind Art Moderne/International Style home was designed to take full advantage of its spectacular west facing lake front on Cedar Lake. One of the few Minneapolis properties with direct waterfront access, the home features walls of glass, clean white walls, translucent glass block windows, phenomenal terraces and multi-level decks, and exceptional sunset views. Art Deco influences are evident throughout. Unique tiled kitchen floors, open main level floor plan, three bedrooms and wonderful family room on 2nd level. The entire 3rd floor is devoted to the primary suite which includes bedroom, sitting room with fireplace, bath with heated floors and steam shower, dressing room, and expansive lake facing terrace. Superb condition, attached garage, smart home technology. Fantastic location near trails, parks & restaurants.
Directions
Cedar Lake Pkwy to North on Burnham Road. Left on Park Lane to home.

Accessible

None
Yes

Air Conditioning

Central Air
Yes

Amenities Unit

Balcony
Yes
Ceiling Fan(s)
Yes
Deck
Yes
French Doors
Yes
Hardwood Floors
Yes
In-Ground Sprinkler
Yes
Kitchen Window
Yes
Panoramic View
Yes
Patio
Yes
Primary Bedroom Walk-In Closet
Yes
Security System
Yes
Tile Floors
Yes
Washer/Dryer Hookup
Yes

Appliances

Air-To-Air Exchanger
Yes
Dishwasher
Yes
Disposal
Yes
Dryer
Yes
Microwave
Yes
Range
Yes
Refrigerator
Yes
Washer
Yes
Water Osmosis System
Yes

Basement

Concrete Block
Yes
Crawl Space
Yes
Drain Tiled
Yes
Partial
Yes
Sump Pump
Yes

Bath Description

Double Sink
Yes
Main Floor 1/2 Bath
Yes
Main Floor 3/4 Bath
Yes
Upper Level 3/4 Bath
Yes
Upper Level Full Bath
Yes
Full Primary
Yes
Private Primary
Yes
Bathroom Ensuite
Yes
Separate Tub & Shower
Yes

Construction Status

Previously Owned
Yes

Dining Room Description

Informal Dining Room
Yes
Living/Dining Room
Yes
Separate/Formal Dining Room
Yes

Electric

Circuit Breakers
Yes

Elevation Highpoint to Waterfront Slope

Level
Yes

Exterior

Stucco
Yes

Family Room Characteristics

Entertainment/Media Center
Yes

Fencing

None
Yes

Financing Terms

Cash
Yes

Fireplace Characteristics

2-Sided
Yes
Family Room
Yes
Gas Burning
Yes
Living Room
Yes
Primary Bedroom
Yes

Fuel

Natural Gas
Yes

Heating

Forced Air
Yes
In-Floor Heating
Yes

Insurance Fee

Insurance Fee
0

Lake/Waterfront

Lake View
Yes

Laundry

Laundry Room
Yes
Main Level
Yes
Upper Level
Yes

Lot Description

Tree Coverage - Light
Yes

Patio, Porch and Deck Features

Deck
Yes
Patio
Yes
Terrace
Yes

Pool Description

None
Yes

Road Frontage

City Street
Yes

Road Responsibility

Public Maintained Road
Yes

Roof

Age Over 8 Years
Yes
Flat
Yes
Rubber
Yes

Sellers Terms

Cash
Yes
Conventional
Yes

Sewer

City Sewer/Connected
Yes

Special Search

2nd Floor Laundry
Yes
3 BR on One Level
Yes
Main Floor Bedroom
Yes
Main Floor Laundry
Yes
Primary Bdr Suite
Yes

Stories

More Than 2 Stories
Yes

Water

City Water/Connected
Yes

Waterfront View

West
Yes

Room Information

Room Name Dimensions Level
Den 12x12 Main
First (1st) Bedroom 14x11 Third
Sitting Room 13x8 Third
Family Room 22x13 Upper
Third (3rd) Bedroom 14x12 Upper
Fourth (4th) Bedroom 13x10 Upper
Patio 28x6 Third
Patio 61x13 Main
Second (2nd) Bedroom 15x14 Upper
Deck 12x12 Upper
Deck 14x9 Upper
Office 8x6 Upper
Laundry 17x7 Main
Kitchen 21x13 Main
Living Room 23x15 Main
Dining Room 14x12 Main
IDX
Listing Office: Coldwell Banker Realty - Lakes
Last Updated: August - 06 - 2025
The data relating to real estate for sale on this web site comes in part from the Broker Reciprocity SM Program of the Regional Multiple Listing Service of Minnesota, Inc. The information provided is deemed reliable but not guaranteed. Properties subject to prior sale, change or withdrawal. ©2024 Regional Multiple Listing Service of Minnesota, Inc All rights reserved.

Starts in :

00
Days
00
Hours
00
Minutes
00
Seconds